根据周口市“十三运”场馆建设部要求,经学院党委研究,我院拟对开元校区体育馆新装图像监控系统进行公开询价(一标段),文昌校区部分楼宇外墙修缮工程一并询价(二标段)。现对项目询价内容及相关要求公告如下:
一、项目内容
详见附件一、附件二。
二、资格要求
(一)一标段
1、参与方须具有独立法人资格;
2、有依法缴纳税收和社会保障资金的良好记录(提供缴纳税收和社保资金有效证明材料,复印件加章);
3、具有良好的商业信誉和健全的财务会计制度(提供公司财务审计报告,复印件加章);
4、投标产品需提供监管单位测试入网证明原件。
(二)二标段
1、参与方须具有独立法人资格;
2、有依法缴纳税收和社会保障资金的良好记录(提供缴纳税收和社保资金有效证明材料,复印件加章);
3、具有良好的商业信誉和健全的财务会计制度(提供公司财务审计报告,复印件加章);
4、提供2015年以来公司三份或三份以上业绩合同证明材料(复印件加章,原件备查);
5、具有建筑业企业资质三级或以上,有效的安全生产许可证(复印件加章,原件备查);
6、项目经理具有二级或以上建造师证,有效的安全考核合格证(复印件加章,原件备查)。
三、报名须知
1、报名材料:公司营业执照、税务登记证、组织机构代码证等资质证书副本原件,法定代表人身份证明原件及加章复印件、或法人授权委托书原件及被委托人身份证原件及加章复印件,符合本公告第二条资质要求规定的资料。(上述材料装订成册,原件备查)
2、报名时间:报名及递交材料时间时间截止于5月10日下午 5点,过时不候。
3、报名地点:开元大道1号周口职业技术学院开元校区行政楼四楼
4、报名联系人:郭海洋15518070096 赵迎亚 15896726296
四、其他说明
1、届时组织相关人员对报名者资格进行集中会审,资格审查通过者,学院通知其参与后续询价活动。
2、参与方在提交报名材料后必须到现场进行查看,否则均被认为在报价中已充分考虑了各种风险和不利因素。
3、报价采用单价包干方式,即报单价且包含施工过程中所有的材料费、人工费、管理费、利润、税金等各项费用。
4、如在施工过程中对甲方任何设施造成损坏,施工单位自行承担一切经济损失。施工期间所发生一切安全事故责任由施工方承担,校方不承担任何责任。
5、本工程所有材料均须符合国家质量标准。校方负责进行质量验收。
6、保修期二年。
7、询价结束后,本次询价活动最低报价者获得学院意向合作方资格。项目符合政府采购条件的,以不高于本次询价活动最低报价参加政府组织的招标采购活动,中标后签订正式合同。
8、为保证询价成功,需在询价前签署承诺书并缴纳保证金(一标段1万元、二标段2万元),未获得学院意向合作方资格者当场全额退还,意向合作方如果在后续政府采购活动未中标则开标当天全额退还,若中标则询价保证金转为质保金,合同签订前,按中标金额5%足额交纳质保金,质保期满退还。
9、询价过程中,如出现故意串通、恶意竞价等干扰行为的,立即取消其询价资格。所有参与方需签订保证书。
周口职业技术学院
2018年5月8日
附件一
一标段
项目名称:周口职业技术学院开元校区体育馆新装图像监控系统
(一)项目内容及参数要求:
|
周口职业技术学院体育馆图像监控系统
|
|
序号
|
设备名称
|
规格
|
单位
|
数量
|
|
1
|
红外网络高清摄像机
|
在1920x1080 25fps下,码率设定为1Mbps,RJ45输出,清晰度不小于1100TVL。
最低照度彩色:0.001lx,黑白:0.0001 lx。
支持H.265、H.264、MPEG-4、MJPEG视频编码格式,其中H.265和H.264都支持Baseline/Main/High Profile。
支持五码流技术,五码流可同时输出,主码流最大1920x1080@30fps,第二码流最大704x480@30fps,第三码流最大1920x1080 @30fps、第四码流最大704x480@30fps,第五码流最大1920x1080 @30fps。
支持帧率动态控制功能,当触发报警时,视频录像帧率应自动调整至设定值。
★支持在20%丢包率的网络环境下,可正常显示监视画面。
支持最多同时开启25个视频窗口进行画面浏览。
★支持场景自适应功能,可根据监控场景自动调节曝光模式。
★支持12行字符叠加,字体大小、颜色、对齐方式可设,具有图片叠加到视频画面功能。
支持智能后检索的开启或关闭。
支持NAT穿越功能,在广域网环境下,支持主动发包动作以实现NAT穿越。
★具有背光补偿、强光抑制、自动增益、透雾、3D降噪、感兴趣区域、SVC、断网续传、配置保存、断电保护、用户登录锁定、用户管理、远程管理、配置管理等功能。
具有1个100M/1000M RJ45网络接口、1个RESET按键。
|
台
|
61.00
|
|
2
|
红外高清球型摄像机
|
内置镜头支持32.1倍光学变倍,镜头最大焦距不小于205.3mm
摄像机靶面尺寸不小于1/1.8英寸
★支持样机在实时码流上图形化显示当前设备所在位置的可视角度和距离;
支持样机将所有供电方式断开后,6s内重新上电,能重新连接,期间设备不重启且监控画面连续无中断;
视频输出支持1920×1200@60fps,1920×1080@60fps,1280×960@60fps,1280×720@60fps
电源具备较好的环境适应性,电压在DC36V±45%范围内变化时,设备可正常工作;
设备应不少于2048个预置位
设备应支持支持断线自动重连
支持开启限位功能,设备只能在限制的位置间移动
支持五码流,同时输出4路分辨率为1920*1080及1路分辨率为704*576的视频图像;
★分辨率设置为1920x1200,帧率设置为25fps,开启smart265功能,码率为1Mbps情况下,可正常显示监视画面;
支持在MP2L2/AAC/PCM音频编码格式下采样率最高为96KHz
具有音频异常侦测功能,启动声强突变之后,可检测到异常音频,触发后联动聚焦、报警上传、上传FTP、发送邮件、联动录像、辅助输出等报警触发方式,并可设置检测的灵敏度及突变阈值
★支持噪声过滤设置,并有麦克风音量和扬声器音量设置选项
支持设置开启、关闭智能后检索功能
在IE浏览器下具有人脸增强设置选项
当设置智能行为的规则时,可设置开启/关闭显示规则框
|
台
|
6.00
|
|
3
|
网线
|
国标无氧铜、室外防水
|
米
|
5000.00
|
|
4
|
网络硬盘录像机
|
1个VGA接口、2个HDMI接口、2个千兆以太网口、1个RS232接口、1个RS485接口(A/B口)、16路报警输入接口;6路报警输出接口;
★设备应能预录报警触发前最大30S视(音)频
可按照移动侦测、信号量报警、智能侦测等事件类型进行备份,并可进行图片备份
★当RAID组中某块工作正常的硬盘被误拔掉之后1分钟内再插上,该硬盘能恢复到原RAID组中
可指定某块硬盘为热备盘,当RAID内某一块硬盘发生故障,热备盘可自动替换故障盘,进行RAID重构,支持全局热备和局部热备
可接入H.265、H.264、MPEG4、MJPEG、Smart264、Smart265编码格式的前端设备并存储录像文件。
★最大支持64路IPC接入,总码流为640Mbps,最大存储码流为640Mbps,最大转发码流为640Mbps,最大回放码流为128Mbps。
可对同一型号的前端IPC远程批量升级,可对IPC进行校时,并查看IPC版本信息。
★在远程设备界面选择IPC,可直接跳转到IPC登陆界面,登陆IPC后可对IPC进行配置
可实现任意自定义分割画面之间的轮巡,自定义布局画面和常规分割画面组合轮巡。
支持设置九宫格图案密码,用户通过绘制九宫格图案来解锁并登陆
可对指定时间的录像文件最多添加8192个标签。单个文件最大支持256个标签
样机可批量添加、修改前端摄像机的IP地址,并可对已添加的前端摄像机IP进行过滤
★接入具有ABF聚焦功能的摄像机,可对视频图像进行ABF聚焦
通用浏览器可设置录像或图片的水印字符,当录像或图片文件被篡改后,可给出相应的提示信息
|
台
|
1.00
|
|
5
|
网络硬盘录像机
|
32路:接入200Mbps,储存160Mbps,转发128Mbps;支持8个内置SATA接口,单盘容量支持10T,可配置成单盘,支持SSD★最大可接入8块接口为SATA的硬盘,单硬盘容量支持最大支持10TB,并支持SSD固态硬盘。
可以对主码流、子码流码分别或同时进行录像;
★可分别对三码流控制录像,编码配置支持三码流可选,预览支持三码流切换;
支持盘组管理,可创建容量不同的数据 存储空间,对不同通道分配不同的存储空间, 可查看盘组容量。可设置盘组为“只读”、“可读写”模式;
★支持配额管理,对同一通道主码流、辅码流、图片分配到不同的盘组中。
★即时回放:即时回放时间从5min到2h 可调;
支持将IPC接入配置以CSV格式文件导入或导出本机,CSV格式文件允许用户编辑
★支持对同一型号的前端IPC远程批量添加、设备IP修改、设备升级,支持IPC校时,并可查看IPC版本信息;
用户首次登录时,提示修改管理员密 码,密码字符长度最大支持32位,支持提 示问题密码找回;
★每个用户在登入设备时,每次输错密码均会提示剩余密码输入次数,到达输错次数时,账户将被锁定。可以设置密码设置输错次数,对操作权限密码进行管理。
支持用户屏蔽功能,被屏蔽的用户在设定时间内将无法访问设备。
★支持在时间轴上鼠标滚轮可控制切换:24小时,12小时,1小时,30min的切换。
支持回放录像剪辑功能,可对录像文件设置时间段进行剪辑
添加设备过程可以开启IP过滤使能功能,已添加的设备自动过滤
★当NVR收到报警联动触发信号时,应能启动设备相应的通道进行联动记录。设备应能预录报警触发前最600s的视(音)频。
支持在低码率下用单个通道的带宽在客户端同时查看多路通道的画面(32路)
★支持单通道多画面预览权限管理,用户只能对有权限的通道进行预览。
加星项需提供公安型式检验报告并加盖厂家印章证明;
|
台
|
1.00
|
|
6
|
硬盘
|
监控专用4T
|
块
|
8.00
|
|
7
|
电源线
|
国标
|
米
|
3500.00
|
|
8
|
16口千兆交换机
|
16路千兆
|
台
|
6.00
|
|
9
|
8口千兆交换机
|
8口千兆
|
台
|
8.00
|
|
10
|
防水电源
|
DC12/2A
|
个
|
61.00
|
|
11
|
监视器
|
16:9;分辨率:1920*1080;输入VGA、HDMI*2、DP*1、音频
|
台
|
2.00
|
|
12
|
PVC管
|
20¢PVC管
|
米
|
1000.00
|
|
13
|
立杆
|
镀锌烤漆3米;
|
套
|
4.00
|
|
14
|
4U壁挂箱
|
4U:525*200*400mm
|
个
|
8.00
|
|
15
|
附件
|
抱箍、支架、水晶头、接头等
|
批
|
1.00
|
|
16
|
挖沟埋管
|
挖深60cm、埋管及恢复
|
米
|
500.00
|
|
17
|
施工费
|
|
项
|
1.00
|
(二)施工工期
以正式施工合同签订日期为准。
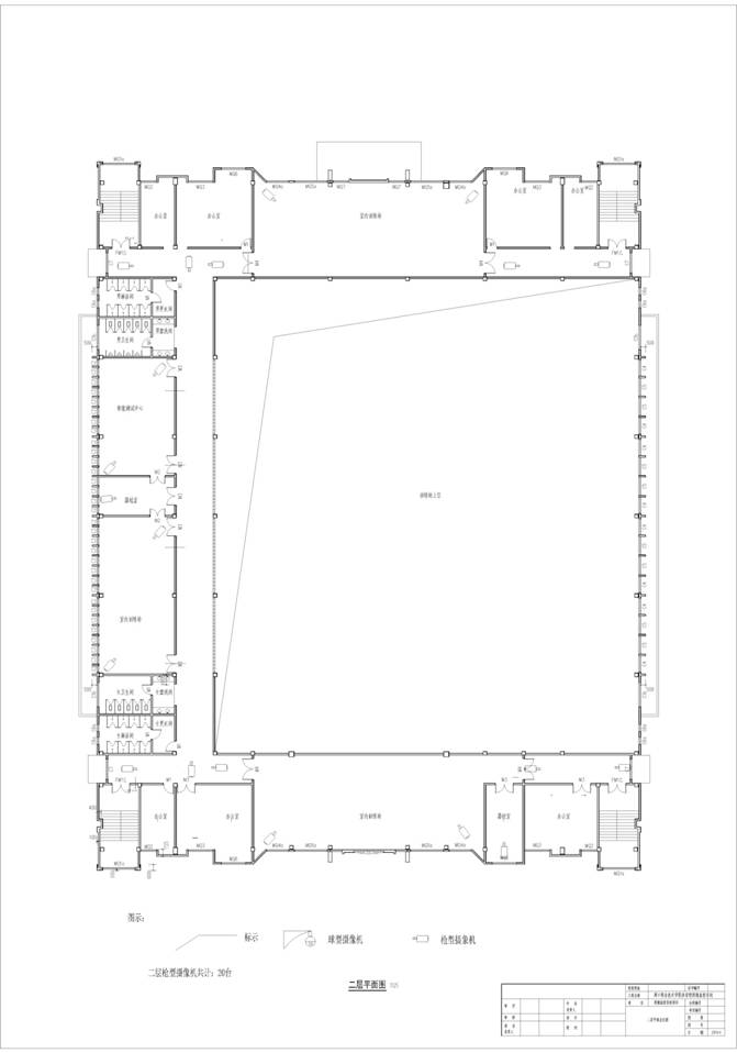
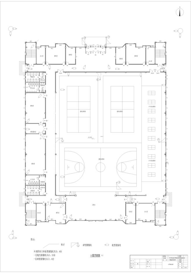
(三)项目布局图

附件二
二标段
项目名称:周口职业技术学院文昌校区外墙修缮工程
(一)项目内容:
总面积:约15963.48㎡(已扣除门窗洞口面积),其中行政楼面价约4412.17㎡,教学楼面积约3355.2㎡,实验楼面积约4112.79㎡,附属医院楼面积约4082.32㎡,以上均已扣除门窗洞口面积。
(二)工程要求
铲掉墙面乳胶漆脱落、松动部分,经基层处理(清理、修补、打磨)后,刷一道界面剂、两道防水腻子,三道外墙乳胶漆(一道底漆、两道面漆)。
(三)施工工期
以正式施工合同签订日期为准。